Active

Listing Tools

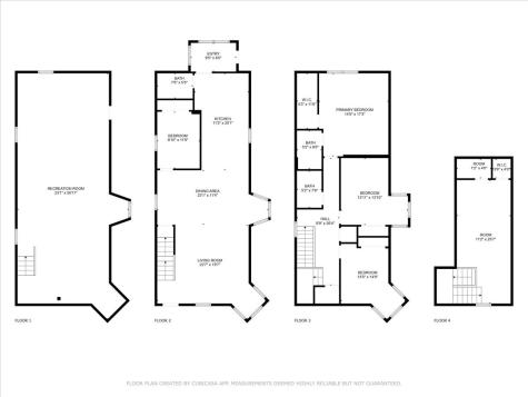
MOVE RIGHT IN!!! 4 full floors of living including full finished basement!!! Come see this completely rehabbed LIKE NEW CONSTRUCTION SFR in a prime location in extremely desirable South Berwyn!! 4 Floors of Living space!! This property was fully permitted and inspected by the City of Berwyn. Completed Gutted and rebuilt floor by floor with a 2nd story addition. Everything is high end including custom wainscotting. All new plumbing, custom electric lighting, 2 zoned HVAC units so heating and cooling is perfect!! The brand new kitchen features custom white shaker in cabinets with high end stainless steel appliances with quartz countertops and custom high end backsplash. See how old blends with new in this wide open floor plan. This house has 4 BEDS and a huge Loft living space for another family room/ rec/ living space or bedroom!! All 3 bathrooms feature custom tile work and high end quartz countertops. This home has a master suite with custom full marble bathroom and large walk in closet. Custom carpentry throughout and high end porcelain tile work with hardwood floors throughout. Full finished basement also has custom wainscotting and a water proofing system of full perimeter interior drain tile system with waterproofing membrane and overhead sewer system so it will never back up or get seepage. Too much to list. Pictures speak for themselves. Beautiful large front porch off main level entrance. All new concrete and landscaping on the exterior. Brand New custom built 2 car garage. This is really too much to list ..must see. Show this with pride!! Full CAD layout of property in pics.

Property Details of 3031 Oak Park Avenue

Property Details

Interior Features

Utilities and Appliances

Community

Other Details

Map Location

Driving Directions

Listed by Joe Nardulli of Good Realty Co

Based on information submitted to MRED  as of March 12, 2026 . All data is obtained from various sources and has not been, and will not be, verified by broker or MRED.   All information should be independently reviewed and verified for accuracy.  Properties may or may not be listed by the office/agent presenting the information. NOTICE: Many homes contain recording devices, and buyers should be aware they may be recorded during a showing.

Hi there! How can we help you?

Contact us using the form below or give us a call.

Send Us A Message:

I agree to receive marketing and customer service calls and text messages from 4 Sale Realty Advantage, Inc. To opt out, you can reply 'stop' at any time or click the unsubscribe link in the emails. Consent is not a condition of purchase. Msg/data rates may apply. Msg frequency varies. Privacy Policy.

Do not fill in this field:

This site is protected by reCAPTCHA and the Google Privacy Policy and Terms of Service apply.

Hi there! How can we help you?

Contact us using the form below or give us a call.

Send Us A Message:

Do not fill in this field:

This site is protected by reCAPTCHA and the Google Privacy Policy and Terms of Service apply.

Hi there! How can we help you?

Contact us using the form below or give us a call.

Send Us A Message:

Do not fill in this field:

This site is protected by reCAPTCHA and the Google Privacy Policy and Terms of Service apply.

Do not fill in this field:

This site is protected by reCAPTCHA and the Google Privacy Policy and Terms of Service apply.

Do not fill in this field:

This site is protected by reCAPTCHA and the Google Privacy Policy and Terms of Service apply.

Do not fill in this field:

This site is protected by reCAPTCHA and the Google Privacy Policy and Terms of Service apply.

$

Do not fill in this field:

This site is protected by reCAPTCHA and the Google Privacy Policy and Terms of Service apply.